Предложение № 5564
№ 5564

Продается с торгов помещение свободного назначения площадью 344 м², №5564

Населенный пункт Владимирская обл., г. Муром
2 353 084 ₽ знак вопроса
Данный объект реализуется с торгов. Если объект вас заинтересовал, подайте заявку на участие в торгах. Порядок подачи заявки и условия участия в торгах, уточняйте по указанным контактам в объявлении. Окончательная стоимость объекта будет определена по итогам торгов.
  • Обременение Не является залогом
  • Вид продажи С торгов
  • Стадия
    Непрофильный актив
  • Собственник
    Юридическое лицо
  • Тип объекта Помещение свободного назначения
  • Общая площадь 344 м²
  • Готовность Не указано
  • Тип здания
    Другой
  • Отделка
    Не указано

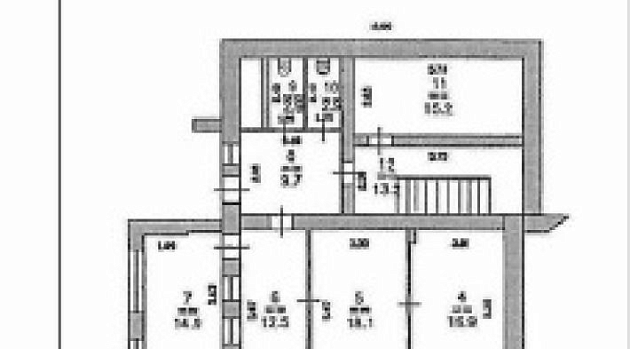
К продаже представлено нежилое помещение
Общая площадь: 344,3 кв.м.
Является пристроенным помещением к многоквартирному жилому дому.
Кадастровый номер: 33:26:050215:143

Номер, тип этажа, на котором расположено помещение, машино-место: Этаж № 1,2.
1 этаж - Площадь: 171,3 кв.м.
2 этаж - Площадь: 173 кв.м.

Высота потолков:
1 этаж - 3 метра
2 этаж - 2,9 метра
Кадастровый номер: 33:26:000000:1217

Здание, в котором находится помещение расположено на земельном участке кад.№ 33:26:050215:747
Территория участка благоустроена, частично заасфальтирована, имеются площадки для проезда и парковки для автотранспорта. Подъездные пути асфальтовые.

В ближайшем окружении имеется вся необходимая для делового и административного центра инфраструктура (административные здания, объекты торговли, культуры; медицинские учреждения; школы, детские сады).

Расстояние до ближайшей остановки городского транспорта:«Вербовский»: 320 м.

Ограничение прав и обременение объекта недвижимости: Не зарегистрировано*

*Сведения указаны в соответствии с выпиской из Единого государственного реестра недвижимости об основных характеристиках и зарегистрированных правах на объект недвижимости от 11.06.2024 № КУВИ-001/2024-156276691

  • Об объекте:
    • Обременение Не является залогом
    • Вид продажи С торгов
    • Стадия
      Непрофильный актив
    • Собственник
      Юридическое лицо
    • Тип объекта Помещение свободного назначения
    • Общая площадь 344 м²
    • Готовность Не указано
    • Тип здания
      Другой
    • Отделка
      Не указано
  • Дополнительная информация
    Дополнительно

    К продаже представлено нежилое помещение
    Общая площадь: 344,3 кв.м.
    Является пристроенным помещением к многоквартирному жилому дому.
    Кадастровый номер: 33:26:050215:143

    Номер, тип этажа, на котором расположено помещение, машино-место: Этаж № 1,2.
    1 этаж - Площадь: 171,3 кв.м.
    2 этаж - Площадь: 173 кв.м.

    Высота потолков:
    1 этаж - 3 метра
    2 этаж - 2,9 метра
    Кадастровый номер: 33:26:000000:1217

    Здание, в котором находится помещение расположено на земельном участке кад.№ 33:26:050215:747
    Территория участка благоустроена, частично заасфальтирована, имеются площадки для проезда и парковки для автотранспорта. Подъездные пути асфальтовые.

    В ближайшем окружении имеется вся необходимая для делового и административного центра инфраструктура (административные здания, объекты торговли, культуры; медицинские учреждения; школы, детские сады).

    Расстояние до ближайшей остановки городского транспорта:«Вербовский»: 320 м.

    Ограничение прав и обременение объекта недвижимости: Не зарегистрировано*

    *Сведения указаны в соответствии с выпиской из Единого государственного реестра недвижимости об основных характеристиках и зарегистрированных правах на объект недвижимости от 11.06.2024 № КУВИ-001/2024-156276691